Casa privata con ingresso indipendente e spazio esterno

Patrizia
3202827280
  • 120000 € Prezzo
  • Abruzzo Regione
  • L'Aquila Provincia
  • L'AQUILA Comune/Città
  • A Classe energetica
  • 70 Superficie

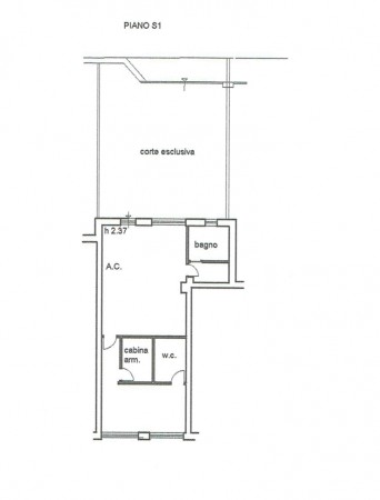
L’abitazione, ricostruita, è composta da: ampia zona giorno con cucina e salotto una camera da letto matrimoniale, cabina armadio, due bagni moderni e funzionali. ottima posizione, a soli 5 minuti dal la f. luminosa, perfetta per coppie o single

Casa singola con ingresso indipendente a valle pretara (l’aquila) a pochi minuti dalla fontana luminosa, in zona tranquilla e ben servita, vendesi casa singola con ingresso indipendente e spazio esterno privato. l’abitazione, ristrutturata e luminosa, è composta da: ampia zona giorno con cucina e salotto open space, una camera da letto matrimoniale, cabina armadio, due bagni moderni e funzionali. la casa gode di un’ottima posizione, a soli 5 minuti dal centro e vicina a tutti i principali serviz


Inserito il 27/10/2025

Inserzionista Patrizia
  • Contatta
  • 3202827280 - 3331320570 - 3383551636
Anomalia nell'Annuncio? Stampa Pagina
Aggiungi ai Preferiti Invia ad un Amico
Stampa il Volantino